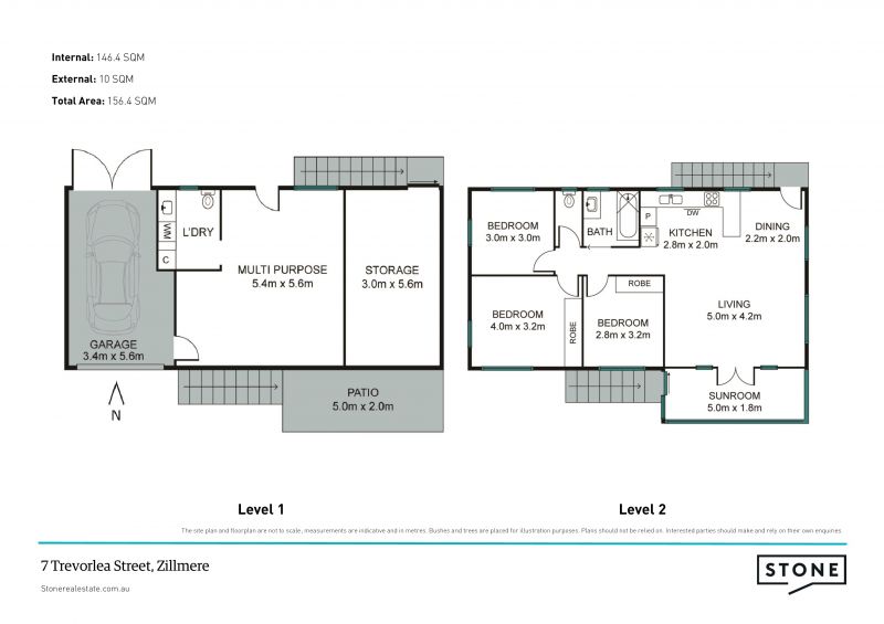
Zillmere 7 Trevorlea Street
3 1 1
Property Details
Dual level starter! 460m from the Aspley border
Just 460m from the Aspley border this immaculately renovated home features so much across 2 levels without breaking the bank. Whether you are just starting out or have that teenager who simply won't leave home, this abode caters for families of all stages and is in true walking distance to schools, train services and shops.
- Kid and pet friendly 539sqm block
- Character filled weatherboard home
- Renovated kitchen + bathroom
- Air-conditioning
- Stainless-steel quality kitchen appliances
- Tonnes of underneath storage space
- Garage with through access to the yard
- Public transport accessibility on your door step
- 3 light-filled Bedrooms:
> The master is perfect for those who enjoy their own space, with Mitsubishi split-system air-conditioning, rich wood flooring, mirror faced built-in-robe, ceiling fan, casement windows and curtains
> Bedroom 2 features rich wood flooring, mirror faced built-in-robe, ceiling fan, casement windows and curtains
> Bedroom 3 features rich wood flooring, ceiling fan, casement windows and curtains
- Chic Bathroom
> The chic main bathroom features floor to ceiling tiles, shower over bath configuration, detachable shower head, wall niche, stone topped vanity with top-mount basin, plenty of storage, mirror faced medicine cabinet, heater/light/extractor combo, towel rail and frosted casement window
> Conveniently located down stairs is the second European style powder room featuring toilet, mirror, custom cabinetry with plenty of storage and a large basin/wash tub
- Living/Entertaining:
> The lounge/dining areas flows effortlessly to the kitchen and down to the outdoor entertaining area. Featuring rich wood flooring, Kelvinator split-system air-conditioning, casement windows, external louvers, LED down-lighting throughout and access to the sunroom/home office offers a seamless flow of living space
> The sunroom located at the front of the home offers fantastic additional space, built-in study desk, timber look flooring and roller blinds
> Downstairs offers so much value for so little, whilst being short of legal height this area's options are only limited by your imagination. Currently being used as a kids play room/rumpus plus access to the European powder room, making it the perfect space for teenagers to have their own space or a growing family
- Upstairs Chefs Kitchen:
> Bellini 4 burner gas cooktop
> Bellini 600mm oven
> Bellini stainless-steel range hood
> Stainless-steel dual basin sink
> Bellini dishwasher
> Loads of bench and cupboard space
> 20mm stone benchtops
> Tiled splashback
- Outdoor entertaining will be a breeze thanks to the built-in seating under the front patio teamed up with the kid and pet friendly yard with established garden encapsulates everything there is to love about our Queensland lifestyle making it the perfect space to relax and unwind with family and friends
- Car accommodation is something this home has in spades with accommodation for 1 vehicle featuring a tilt door with through access to the backyard
- This property also features:
> Large water tank
> Fully enclosed fence line
> Under house storage area
- Amenities nearby:
> Public transport (train station Zillmere) 452m
> Public transport (bus stop) 453m
> Robinson Rd Market Place 963m
> Zillmere state Primary School 739m
> Aspley State High School 1.04 km
> Aspley hypermarket 1.8 km
- Short drive to:
> Marchant park and walking tracks 1.79 km
> Westfield Chermside 2.48 km
> Airport 9.06 km
> CBD 12.36 km
- Council rates: $361.68pq approx.
Make no mistake, this property offers insanely good value for money and will be snapped up in no time to so move fast to inspect now!
Disclaimer
This property is being sold by auction or without a price and therefore a price guide cannot be provided. The website may have filtered the property into a price bracket for website functionality purposes.
- Kid and pet friendly 539sqm block
- Character filled weatherboard home
- Renovated kitchen + bathroom
- Air-conditioning
- Stainless-steel quality kitchen appliances
- Tonnes of underneath storage space
- Garage with through access to the yard
- Public transport accessibility on your door step
- 3 light-filled Bedrooms:
> The master is perfect for those who enjoy their own space, with Mitsubishi split-system air-conditioning, rich wood flooring, mirror faced built-in-robe, ceiling fan, casement windows and curtains
> Bedroom 2 features rich wood flooring, mirror faced built-in-robe, ceiling fan, casement windows and curtains
> Bedroom 3 features rich wood flooring, ceiling fan, casement windows and curtains
- Chic Bathroom
> The chic main bathroom features floor to ceiling tiles, shower over bath configuration, detachable shower head, wall niche, stone topped vanity with top-mount basin, plenty of storage, mirror faced medicine cabinet, heater/light/extractor combo, towel rail and frosted casement window
> Conveniently located down stairs is the second European style powder room featuring toilet, mirror, custom cabinetry with plenty of storage and a large basin/wash tub
- Living/Entertaining:
> The lounge/dining areas flows effortlessly to the kitchen and down to the outdoor entertaining area. Featuring rich wood flooring, Kelvinator split-system air-conditioning, casement windows, external louvers, LED down-lighting throughout and access to the sunroom/home office offers a seamless flow of living space
> The sunroom located at the front of the home offers fantastic additional space, built-in study desk, timber look flooring and roller blinds
> Downstairs offers so much value for so little, whilst being short of legal height this area's options are only limited by your imagination. Currently being used as a kids play room/rumpus plus access to the European powder room, making it the perfect space for teenagers to have their own space or a growing family
- Upstairs Chefs Kitchen:
> Bellini 4 burner gas cooktop
> Bellini 600mm oven
> Bellini stainless-steel range hood
> Stainless-steel dual basin sink
> Bellini dishwasher
> Loads of bench and cupboard space
> 20mm stone benchtops
> Tiled splashback
- Outdoor entertaining will be a breeze thanks to the built-in seating under the front patio teamed up with the kid and pet friendly yard with established garden encapsulates everything there is to love about our Queensland lifestyle making it the perfect space to relax and unwind with family and friends
- Car accommodation is something this home has in spades with accommodation for 1 vehicle featuring a tilt door with through access to the backyard
- This property also features:
> Large water tank
> Fully enclosed fence line
> Under house storage area
- Amenities nearby:
> Public transport (train station Zillmere) 452m
> Public transport (bus stop) 453m
> Robinson Rd Market Place 963m
> Zillmere state Primary School 739m
> Aspley State High School 1.04 km
> Aspley hypermarket 1.8 km
- Short drive to:
> Marchant park and walking tracks 1.79 km
> Westfield Chermside 2.48 km
> Airport 9.06 km
> CBD 12.36 km
- Council rates: $361.68pq approx.
Make no mistake, this property offers insanely good value for money and will be snapped up in no time to so move fast to inspect now!
Disclaimer
This property is being sold by auction or without a price and therefore a price guide cannot be provided. The website may have filtered the property into a price bracket for website functionality purposes.