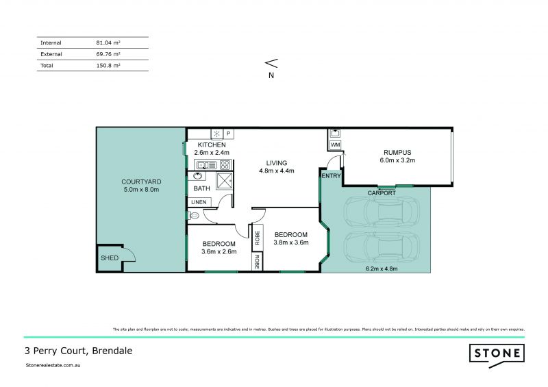
Brendale 3 Perry Court
2 1 1
Property Details
Air-conditioned villa living in a quiet estate
Positioned just a 450m walk to Strathpine train station yet tucked away in this quiet estate this neat as a pin villa offers the best of low maintenance living whilst being central to everything.
This is a huge outdoor living area with paving, a low upkeep garden and a huge EPS panel roof.
Nothing will beat this location with Strathpine Centre shops just a 2 minute drive or a 500m walk away, local restaurants and cafes at your doorstep plus 500m to Pine Rivers Park and 1km to St Pauls!
> As new carpet
> Air-conditioned
> Low maintenance
> Private courtyard
This lowset home offers;
> 2 bedrooms
- Bedroom 1 offers carpeted flooring (as new condition), ceiling fan, security screens, vertical blinds and a built-in-wardrobe with mirror.
- Bedroom 2 offers carpeted flooring (as new condition), security screens and a built-in-wardrobe with mirror.
> Bathroom with corner shower, single vanity and the toilet is separate.
> The kitchen is nicely tucked away at the back of the home and opening to the courtyard. The kitchen has been finished with tiled floors, double sink, laminate cupboards and benchtops including a pantry and the Chef electric upright oven/stove is practically new.
> The main living area is open plan with timber floors, ceiling fan, security screen and air-conditioning.
> The garage has been converted into a second living area finished with tiled floors, ceiling fan, and access to the carport or front sitting area.
> Internal laundry located at the back of the second living area.
With such a central location and in one of Strathpine's most highly coveted enclaves this will not last so move fast to inspect today.
**HOW TO INSPECT THIS PROPERTY**
Arranging an inspection is easy. If you are on our website simply click the 'Book Inspection' button for that rental property. You MUST enter your details to book an inspection time.
Alternatively, you can access the booking page from either http://www.realestate.com.au or http://www.domain.com.au by sending an email enquiry or by clicking the VIRTUAL TOUR link for this rental property. You MUST enter your details to book an inspection time.
By registering your details using either method above, you will be INSTANTLY informed of any updates, changes or cancellations for your property appointment.
If no one registers for an inspection time – then that inspection may not proceed. So DON'T MISS OUT – book for an inspection time today!
This is a huge outdoor living area with paving, a low upkeep garden and a huge EPS panel roof.
Nothing will beat this location with Strathpine Centre shops just a 2 minute drive or a 500m walk away, local restaurants and cafes at your doorstep plus 500m to Pine Rivers Park and 1km to St Pauls!
> As new carpet
> Air-conditioned
> Low maintenance
> Private courtyard
This lowset home offers;
> 2 bedrooms
- Bedroom 1 offers carpeted flooring (as new condition), ceiling fan, security screens, vertical blinds and a built-in-wardrobe with mirror.
- Bedroom 2 offers carpeted flooring (as new condition), security screens and a built-in-wardrobe with mirror.
> Bathroom with corner shower, single vanity and the toilet is separate.
> The kitchen is nicely tucked away at the back of the home and opening to the courtyard. The kitchen has been finished with tiled floors, double sink, laminate cupboards and benchtops including a pantry and the Chef electric upright oven/stove is practically new.
> The main living area is open plan with timber floors, ceiling fan, security screen and air-conditioning.
> The garage has been converted into a second living area finished with tiled floors, ceiling fan, and access to the carport or front sitting area.
> Internal laundry located at the back of the second living area.
With such a central location and in one of Strathpine's most highly coveted enclaves this will not last so move fast to inspect today.
**HOW TO INSPECT THIS PROPERTY**
Arranging an inspection is easy. If you are on our website simply click the 'Book Inspection' button for that rental property. You MUST enter your details to book an inspection time.
Alternatively, you can access the booking page from either http://www.realestate.com.au or http://www.domain.com.au by sending an email enquiry or by clicking the VIRTUAL TOUR link for this rental property. You MUST enter your details to book an inspection time.
By registering your details using either method above, you will be INSTANTLY informed of any updates, changes or cancellations for your property appointment.
If no one registers for an inspection time – then that inspection may not proceed. So DON'T MISS OUT – book for an inspection time today!