Deagon 29 Blackwood Road
4 2 3
Property Details
Two separate homes on one title close to water and transport.
The perfect opportunity for dual families & Investors!
Presented to market is this great opportunity to live the Bayside lifestyle with this dual family residence!
It's not every day you find a property with two fully approved homes and located on a huge 701sqm block.
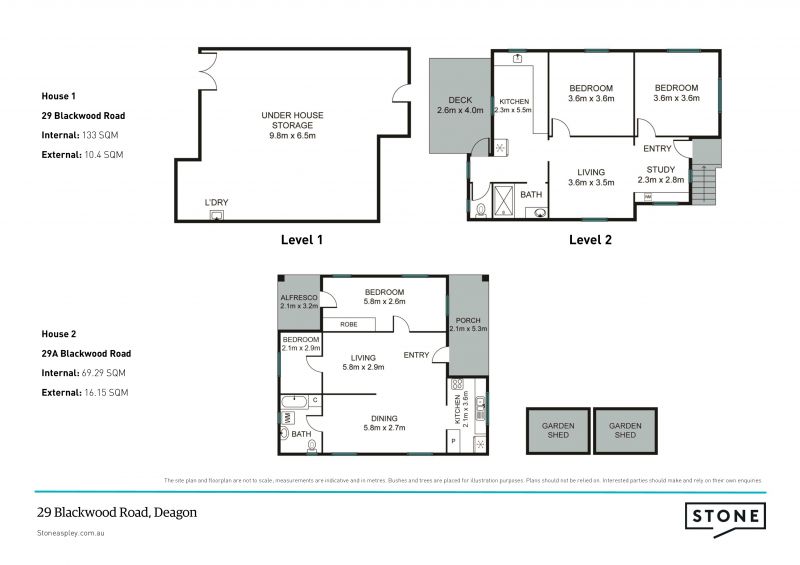
Front home features include:
- Separately fenced - 2 off street parking spaces
- Renovated kitchen and bathroom
- 2 over-sized bedrooms with fixed wardrobes
- Air-conditioned living & main bedroom
- Built in study workspace perfect for working from home
- New deck built off the rear
- Lockable under house storage
- Owner occupied and ready to move into
- Rental Appraisal $400 - $420pwk
Rear home features include:
- 2 bedrooms (master with built in robe)
- Fully fenced yard with gate
- Rear patio
- Currently tenanted for $280 p/wk (Updated appraisal $300 - $320)
- Large living & dining spaces
- 2 garden sheds
- 1 off street car space
Location features:
- 4 minute walk to Deagon train station
- 5 minute drive to Curlew Park
- 6 minute drive to Sandgate waterfront
- 15 minute drive to Brisbane Airport
- 25 minute drive into Brisbane CBD
Just minutes to the bay area, shopping precinct, quality schools and transport, with Moreton bay as your backyard, offering exceptional cafés, restaurants and sporting clubs.
- Council rates: $643.11pq approx.
Properties as unique as this won't last long in the current market. Call today to arrange your inspection and to avoid missing out!
Presented to market is this great opportunity to live the Bayside lifestyle with this dual family residence!
It's not every day you find a property with two fully approved homes and located on a huge 701sqm block.
Front home features include:
- Separately fenced - 2 off street parking spaces
- Renovated kitchen and bathroom
- 2 over-sized bedrooms with fixed wardrobes
- Air-conditioned living & main bedroom
- Built in study workspace perfect for working from home
- New deck built off the rear
- Lockable under house storage
- Owner occupied and ready to move into
- Rental Appraisal $400 - $420pwk
Rear home features include:
- 2 bedrooms (master with built in robe)
- Fully fenced yard with gate
- Rear patio
- Currently tenanted for $280 p/wk (Updated appraisal $300 - $320)
- Large living & dining spaces
- 2 garden sheds
- 1 off street car space
Location features:
- 4 minute walk to Deagon train station
- 5 minute drive to Curlew Park
- 6 minute drive to Sandgate waterfront
- 15 minute drive to Brisbane Airport
- 25 minute drive into Brisbane CBD
Just minutes to the bay area, shopping precinct, quality schools and transport, with Moreton bay as your backyard, offering exceptional cafés, restaurants and sporting clubs.
- Council rates: $643.11pq approx.
Properties as unique as this won't last long in the current market. Call today to arrange your inspection and to avoid missing out!