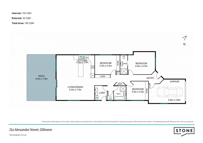
Zillmere 21A Alexander Street
3 2 1
Property Details
The luxury entertainer.
Available for the first time, this stunning home is simply surprising at every turn. From the white picket fence through to the stunning open plan living space overlooking the private entertaining area and lush green lawn, this low maintenance home with air conditioning is the one you've been waiting to inspect!
This home features:
> Master bedroom with stunning ensuite
> Neutral fresh colour palette
> Renovated kitchen
> Open plan living spaces with timber flooring
> Covered + private entertaining area
> Separate laundry with outdoor access
> Air-conditioned, security screens + ceiling fans
> Lush green low maintenance fully fenced yard
This single level recently renovated home features:
> Three Bedrooms
- Master king-size bedroom features a mirrored wardrobe with ample storage space, ceiling fan, security screens, neutral fresh paint, cream carpet & a recently renovated ensuite
- Additional bedrooms are generous in proportions with built-in wardrobes with ample storage space, ceiling fan, security screen, neutral fresh paint & cream carpet
> Modern Bathrooms
- Ensuite has just been renovated and is simply stunning. The rainshower sets the luxury tone for this well designed ensuite with modern black fixtures, combo exhaust/heat lamp, sliding barn style glass shower screen, new mirrored cabinets with internal powerpoints installed, set above the stone and wood vanity. A modern toilet with a soft-close lid and a barn door complete this designer ensuite.
- Main bathroom is finished in crisp white tiles and features a large deep bath perfect for soaking the day away along with a separate shower, a large light-soaked mirror with storage, and a vanity with storage and drawers.
- Separate Toilet
> Living Spaces
- The main living space is simply divine with a brand new split system air conditioner, soft natural timbers underfoot, modern downlights, fresh paintwork, and a modern crisp white kitchen with modern black handles complete the look
- Outdoor entertaining in all-weather conditions will be a dream with the covered patio, complete with ceiling fan and downlights all whilst overlooking the lush green lawn and low maintenance rear hedge
> The Kitchen
- Recently updated this fresh and crisp white kitchen fits perfectly into the entertainers' dreams
- Electric cooktop & oven
- Breakfast bar with pendant lights
- Loads of storage, large pantry
- Dishwasher
- Large fridge space
- Recently upgraded appliances
> Laundry
- Oversized with direct access to the outside clothesline
> Additional Items
- Single lock up garage with automatic remote door
- Fully fenced, low maintenance yard
- Security screens throughout
- NBN Installed
Stunning homes like this don't come onto the market every day and this home is one not to miss. If you're looking to make a move to a home that has everything that you're looking for… let's chat.
How to book & inspect this property:
Arranging an inspection is easy. If you are on our website, simply click 'Book An Inspection', enter your details and confirm your booking by selecting your preferred date and time.
Alternatively, on realestate.com.au select 'Request an Inspection' and select your preferred date and time, along with your details.
Once confirmed, you'll automatically receive a confirmation email & SMS along with any updates that may occur for that property & inspection time.
If no one registers for an inspection time – then that inspection may not proceed. So, DON'T MISS OUT – Book for an inspection time today!
This home features:
> Master bedroom with stunning ensuite
> Neutral fresh colour palette
> Renovated kitchen
> Open plan living spaces with timber flooring
> Covered + private entertaining area
> Separate laundry with outdoor access
> Air-conditioned, security screens + ceiling fans
> Lush green low maintenance fully fenced yard
This single level recently renovated home features:
> Three Bedrooms
- Master king-size bedroom features a mirrored wardrobe with ample storage space, ceiling fan, security screens, neutral fresh paint, cream carpet & a recently renovated ensuite
- Additional bedrooms are generous in proportions with built-in wardrobes with ample storage space, ceiling fan, security screen, neutral fresh paint & cream carpet
> Modern Bathrooms
- Ensuite has just been renovated and is simply stunning. The rainshower sets the luxury tone for this well designed ensuite with modern black fixtures, combo exhaust/heat lamp, sliding barn style glass shower screen, new mirrored cabinets with internal powerpoints installed, set above the stone and wood vanity. A modern toilet with a soft-close lid and a barn door complete this designer ensuite.
- Main bathroom is finished in crisp white tiles and features a large deep bath perfect for soaking the day away along with a separate shower, a large light-soaked mirror with storage, and a vanity with storage and drawers.
- Separate Toilet
> Living Spaces
- The main living space is simply divine with a brand new split system air conditioner, soft natural timbers underfoot, modern downlights, fresh paintwork, and a modern crisp white kitchen with modern black handles complete the look
- Outdoor entertaining in all-weather conditions will be a dream with the covered patio, complete with ceiling fan and downlights all whilst overlooking the lush green lawn and low maintenance rear hedge
> The Kitchen
- Recently updated this fresh and crisp white kitchen fits perfectly into the entertainers' dreams
- Electric cooktop & oven
- Breakfast bar with pendant lights
- Loads of storage, large pantry
- Dishwasher
- Large fridge space
- Recently upgraded appliances
> Laundry
- Oversized with direct access to the outside clothesline
> Additional Items
- Single lock up garage with automatic remote door
- Fully fenced, low maintenance yard
- Security screens throughout
- NBN Installed
Stunning homes like this don't come onto the market every day and this home is one not to miss. If you're looking to make a move to a home that has everything that you're looking for… let's chat.
How to book & inspect this property:
Arranging an inspection is easy. If you are on our website, simply click 'Book An Inspection', enter your details and confirm your booking by selecting your preferred date and time.
Alternatively, on realestate.com.au select 'Request an Inspection' and select your preferred date and time, along with your details.
Once confirmed, you'll automatically receive a confirmation email & SMS along with any updates that may occur for that property & inspection time.
If no one registers for an inspection time – then that inspection may not proceed. So, DON'T MISS OUT – Book for an inspection time today!