Kedron 93 Boothby Street
3 2 3
Property Details
Relaxed Entertaining
Situated in a cul-de-sac walking distance to schools, bike paths, parks and public transport and in close proximity to Coles this neat as a pin abode is the perfect place to settle down. Partly renovated and boasting a generous 508sqm block with a flat kid friendly backyard this home is a must see.
- Main bedroom with walk-in wardrobe and ensuite
- Air-conditioning, ceiling fans and screens
- Fully fenced low-maintenance yard
- Large covered deck
- Under-house storage area
- Low maintenance fully-fenced yard
- Pets considered upon application
- Tandem garage
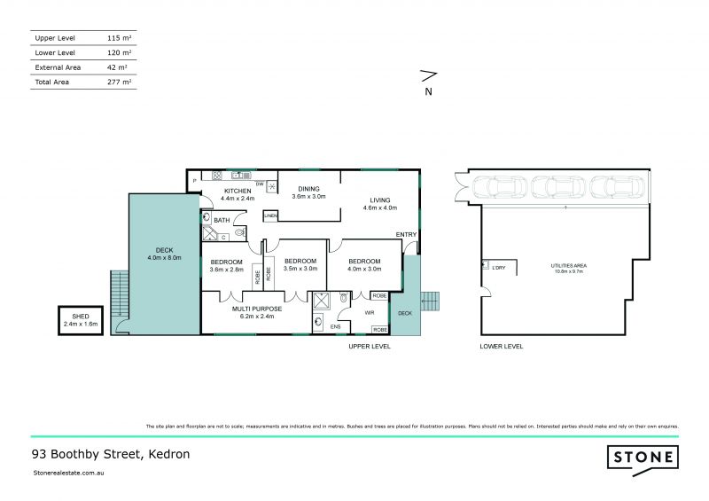
Three spacious bedrooms plus multi-purpose
- Master bedroom offer timber floors, ceiling fan, air-conditioning, crim-safe screen, timber floors, curtains, walk-through robe and ensuite
- Bedroom two offers timber floors, ceiling fan, curtains and built-in-wardrobe
- Bedroom three offer timber floors, ceiling fan, curtains, crim-safe and built-in-wardrobe
- The multi-purpose room is located off bedrooms two and three offering, timber floors, plenty of natural light, blinds and air-conditioning
Two bathrooms
- Ensuite to the master bedroom is a relatively new addition to the home offering a hanging single vanity, shower with recess and dual shower heads (rain drop & adjustable), plus combined toilet
- Main bathroom offers corner shower, single vanity and combined toilet
Modern galley style kitchen with Westinghouse 4 burner electric cooktop, Westinghouse stainless steel oven, stainless steel rangehood, plenty of bench and cupboard space including open pantry, Bosch Dishwasher and access to the large deck
Light-filled lounge room with timber floors, crim-safe, curtains, ceiling fan and air-conditioning
Separate dining located between the kitchen and lounge with timber floors and curtains
Entertain all year round on the large covered private deck off the back of the home overlooking the yard
Laundry located under the house
Tandem garage under the house plus additional space
How to book & inspect this property:
Arranging an inspection is easy. If you are on our website, simply click 'Book An Inspection', enter your details and confirm your booking by selecting your preferred date and time.
Alternatively, on realestate.com.au select 'Request an Inspection' and select your preferred date and time, along with your details.
Once confirmed, you'll automatically receive a confirmation email & SMS along with any updates that may occur for that property & inspection time.
If no one registers for an inspection time – then that inspection may not proceed. So, DON'T MISS OUT – Book for an inspection time today!
- Main bedroom with walk-in wardrobe and ensuite
- Air-conditioning, ceiling fans and screens
- Fully fenced low-maintenance yard
- Large covered deck
- Under-house storage area
- Low maintenance fully-fenced yard
- Pets considered upon application
- Tandem garage
Three spacious bedrooms plus multi-purpose
- Master bedroom offer timber floors, ceiling fan, air-conditioning, crim-safe screen, timber floors, curtains, walk-through robe and ensuite
- Bedroom two offers timber floors, ceiling fan, curtains and built-in-wardrobe
- Bedroom three offer timber floors, ceiling fan, curtains, crim-safe and built-in-wardrobe
- The multi-purpose room is located off bedrooms two and three offering, timber floors, plenty of natural light, blinds and air-conditioning
Two bathrooms
- Ensuite to the master bedroom is a relatively new addition to the home offering a hanging single vanity, shower with recess and dual shower heads (rain drop & adjustable), plus combined toilet
- Main bathroom offers corner shower, single vanity and combined toilet
Modern galley style kitchen with Westinghouse 4 burner electric cooktop, Westinghouse stainless steel oven, stainless steel rangehood, plenty of bench and cupboard space including open pantry, Bosch Dishwasher and access to the large deck
Light-filled lounge room with timber floors, crim-safe, curtains, ceiling fan and air-conditioning
Separate dining located between the kitchen and lounge with timber floors and curtains
Entertain all year round on the large covered private deck off the back of the home overlooking the yard
Laundry located under the house
Tandem garage under the house plus additional space
How to book & inspect this property:
Arranging an inspection is easy. If you are on our website, simply click 'Book An Inspection', enter your details and confirm your booking by selecting your preferred date and time.
Alternatively, on realestate.com.au select 'Request an Inspection' and select your preferred date and time, along with your details.
Once confirmed, you'll automatically receive a confirmation email & SMS along with any updates that may occur for that property & inspection time.
If no one registers for an inspection time – then that inspection may not proceed. So, DON'T MISS OUT – Book for an inspection time today!