Carseldine 5 Nemira Street
6 3 4
Property Details
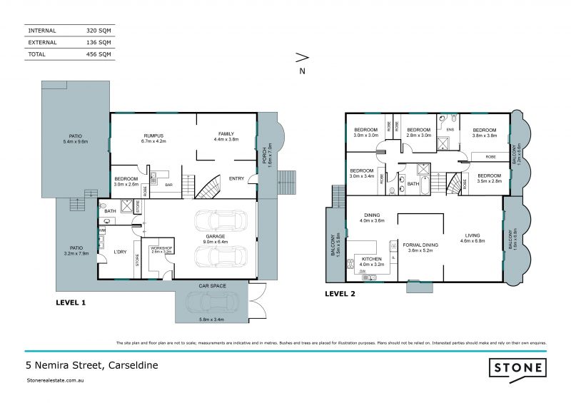
Oversized Home
This oversized home is one of a kind for size and location. Set over three split-levels this home is ultra-low maintenance and boasts numerous living spaces and new carpets and blinds in each of the bedrooms. If you're looking for a large home, look no further.
- Large kitchen
- New carpet (bedrooms)
- Freshly painted throughout
- New blinds (to be installed)
- Formal and casual living areas
- Rumpus and family room
- Bar
- Double garage and workshop
> Six bedrooms
- Master bedroom is located at the front of the house and has access to the large balcony. Freshly painted, new carpet, new blinds (to be installed), wardrobes, ceiling fan and ensuite
- Additional bedrooms are freshly painted, new carpet, new blinds, wardrobe and ceiling fan
> Living areas
- The formal living area is nothing short of huge. Freshly painted and panel glide builds open to the large balcony and connects to the formal dining area
- The formal dining area is carpeted with a feature light, freshly painted and has a private balcony
- The casual dining area is connected to the kitchen and is tiled for ease and has another balcony with access to the patio
- Located on the lower level a large flexible tiled space, perfect for a pool table, playroom or adults retreat complete with bar
> Open plan kitchen is designed for a house of this size. Stone benches, loads of cabinet space and storage along with a six-burner gas cooktop, electric oven, rangehood, dishwasher and double sinks
> Bathrooms
- A large bathroom is light-filled and features a separate bath, glass shower cubical and double basin with vanity storage. A separate toilet
- The ensuite features natural light, a semi-frameless glass shower, corner vanity with storage and a toilet
- Additional bathroom downstairs features a semi-frameless glass shower, natural light, vanity with storage and toilet
> Additional features
- Large laundry with external access
- A workshop with external access
How to book & inspect this property:
Arranging an inspection is easy. If you are on our website, simply click 'Book An Inspection', enter your details and confirm your booking by selecting your preferred date and time.
Alternatively, on realestate.com.au select 'Request an Inspection' and select your preferred date and time, along with your details.
Once confirmed, you'll automatically receive a confirmation email & SMS along with any updates that may occur for that property & inspection time.
If no one registers for an inspection time – then that inspection may not proceed. So, DON'T MISS OUT – Book for an inspection time today!
- Large kitchen
- New carpet (bedrooms)
- Freshly painted throughout
- New blinds (to be installed)
- Formal and casual living areas
- Rumpus and family room
- Bar
- Double garage and workshop
> Six bedrooms
- Master bedroom is located at the front of the house and has access to the large balcony. Freshly painted, new carpet, new blinds (to be installed), wardrobes, ceiling fan and ensuite
- Additional bedrooms are freshly painted, new carpet, new blinds, wardrobe and ceiling fan
> Living areas
- The formal living area is nothing short of huge. Freshly painted and panel glide builds open to the large balcony and connects to the formal dining area
- The formal dining area is carpeted with a feature light, freshly painted and has a private balcony
- The casual dining area is connected to the kitchen and is tiled for ease and has another balcony with access to the patio
- Located on the lower level a large flexible tiled space, perfect for a pool table, playroom or adults retreat complete with bar
> Open plan kitchen is designed for a house of this size. Stone benches, loads of cabinet space and storage along with a six-burner gas cooktop, electric oven, rangehood, dishwasher and double sinks
> Bathrooms
- A large bathroom is light-filled and features a separate bath, glass shower cubical and double basin with vanity storage. A separate toilet
- The ensuite features natural light, a semi-frameless glass shower, corner vanity with storage and a toilet
- Additional bathroom downstairs features a semi-frameless glass shower, natural light, vanity with storage and toilet
> Additional features
- Large laundry with external access
- A workshop with external access
How to book & inspect this property:
Arranging an inspection is easy. If you are on our website, simply click 'Book An Inspection', enter your details and confirm your booking by selecting your preferred date and time.
Alternatively, on realestate.com.au select 'Request an Inspection' and select your preferred date and time, along with your details.
Once confirmed, you'll automatically receive a confirmation email & SMS along with any updates that may occur for that property & inspection time.
If no one registers for an inspection time – then that inspection may not proceed. So, DON'T MISS OUT – Book for an inspection time today!