Aspley 2 Ibsen Street
4 2 2
Property Details
Hilltop Haven
Welcome to this impressive brick behemoth, proudly set on an elevated 592sqm corner block, offering wide, sweeping vistas in one of the area's most sought-after pockets. Perfect for those seeking both convenience and an exceptional outlook, this home is a rare find, offering both scale and quality in a highly desirable location.
- Large 592sqm corner block
- Elevated North/South facing aspect with beautiful views and bay breezes
- Side access via Ferrier St
- Large under-house storage area
- Dual multipurpose rooms
- Freshly painted throughout
- NBN connected - Fibre to the Premise
- Large 10,000L water tank with pump
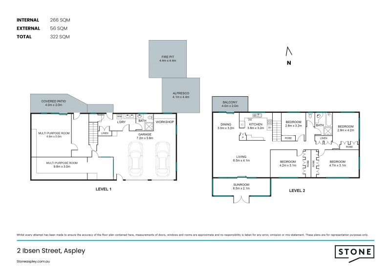
- 4 Bedrooms:
> The master bedroom features air conditioning, rich timber flooring, casement windows with security bars, a built-in wardrobe, downlighting, Venetian blinds, and curtains.
> Bedroom 2 includes air conditioning, rich timber flooring, casement windows with security bars, a built-in wardrobe, ceiling fan, downlighting, Venetian blinds, and curtains.
> Bedroom 3 includes air conditioning, rich timber flooring, casement windows with security screens, roller blinds, a built-in wardrobe, and a ceiling fan with lighting.
> Bedroom 4 features rich timber flooring, casement windows with security screens, Venetian blinds and curtains, a built-in wardrobe, and a ceiling fan with lighting.
- 2 bathrooms:
> The main bathroom, located on the top level, includes a shower with a detachable showerhead, a separate bath, a single-basin vanity with ample storage, towel racks, a hand towel rail, a mirrored vanity cabinet with lighting, a heat/light/extractor, and a separate toilet.
> Bathroom 2, located on the lower level, includes a shower, single-basin vanity with storage, towel rail, vanity mirror, standard lighting, and a toilet.
- The kitchen, seamlessly connected to the main living and dining areas, features:
> Electrolux 3-burner induction electric cooktop
> Electrolux 600mm stainless steel oven
> Bosch stainless steel dishwasher
> Stainless steel double-basin sink
> Timber cabinetry
> Laminate and stainless steel benchtop
> Tiled splashback
> Under-cabinet lighting as well as downlighting
> Casement windows with flyscreens
> Cork flooring
- A multitude of living spaces:
> Located on the top level of the property, the large lounge/dining room features rich timber flooring, casement windows, external privacy shutters, downlighting, and a sliding door that provides access to the sunroom and the rear balcony.
> Located at the front of the property, the sunroom features tiled flooring, fluorescent lighting, a sliding door, casement windows, and large double doors providing access to the front yard.
- Located on the lower level are two multipurpose rooms. Although they are just shy of legal height, the possibilities are endless, with access to the under-house storage area.
> Multipurpose room 1 features tiled flooring, casement windows with security bars/screens, fluorescent lighting, and a sliding door providing access to the patio and yard.
> Multipurpose room 2 features tiled flooring, sliding windows, fluorescent lighting, and built-in storage.
- Outdoor entertaining will be effortless, thanks to the many options this property offers, combined with a kid-friendly yard that encapsulates everything there is to love about Queensland living.
> A balcony located on the top level overlooks the yard.
> A patio located directly beneath the balcony.
> A large alfresco area is located in the backyard, complemented by a dedicated stone area perfect for a potential fire pit.
- Secure parking for two vehicles is provided by the double car garage, equipped with electric doors and internal access, along with additional parking available on the street.
- The laundry, located on the lower level, features tiled flooring, storage cupboards, and large dual wash tubs.
- This property also features:
> Large 592sqm corner block
> Elevated North/South facing aspect with beautiful views and bay breezes
> Side access via Ferrier St
> Large under-house storage area
> NBN connected - Fibre to the Premise
> Freshly painted throughout
> New blinds, curtains and modern lighting throughout
> Large 10,000L water tank with pump
> Dedicated workshop with solid bench
- School Catchments:
> Aspley East State Primary School
> Aspley State High School
- Amenities nearby:
> Public transport 279m
> Robinson Rd Market Place 280m
> Aspley East State School 569m
> Marchant Park 637m
> Aspley Hypermarket 1.1km
> Aspley State High School 1.4km
> Kidspace playground 1.5km
> Westfield Chermside 1.59km
> Airport 9.5km
> CBD 10.8km
Vacant and ready to go just in time for Christmas, this home won't last long so call to inspect today.
- Large 592sqm corner block
- Elevated North/South facing aspect with beautiful views and bay breezes
- Side access via Ferrier St
- Large under-house storage area
- Dual multipurpose rooms
- Freshly painted throughout
- NBN connected - Fibre to the Premise
- Large 10,000L water tank with pump
- 4 Bedrooms:
> The master bedroom features air conditioning, rich timber flooring, casement windows with security bars, a built-in wardrobe, downlighting, Venetian blinds, and curtains.
> Bedroom 2 includes air conditioning, rich timber flooring, casement windows with security bars, a built-in wardrobe, ceiling fan, downlighting, Venetian blinds, and curtains.
> Bedroom 3 includes air conditioning, rich timber flooring, casement windows with security screens, roller blinds, a built-in wardrobe, and a ceiling fan with lighting.
> Bedroom 4 features rich timber flooring, casement windows with security screens, Venetian blinds and curtains, a built-in wardrobe, and a ceiling fan with lighting.
- 2 bathrooms:
> The main bathroom, located on the top level, includes a shower with a detachable showerhead, a separate bath, a single-basin vanity with ample storage, towel racks, a hand towel rail, a mirrored vanity cabinet with lighting, a heat/light/extractor, and a separate toilet.
> Bathroom 2, located on the lower level, includes a shower, single-basin vanity with storage, towel rail, vanity mirror, standard lighting, and a toilet.
- The kitchen, seamlessly connected to the main living and dining areas, features:
> Electrolux 3-burner induction electric cooktop
> Electrolux 600mm stainless steel oven
> Bosch stainless steel dishwasher
> Stainless steel double-basin sink
> Timber cabinetry
> Laminate and stainless steel benchtop
> Tiled splashback
> Under-cabinet lighting as well as downlighting
> Casement windows with flyscreens
> Cork flooring
- A multitude of living spaces:
> Located on the top level of the property, the large lounge/dining room features rich timber flooring, casement windows, external privacy shutters, downlighting, and a sliding door that provides access to the sunroom and the rear balcony.
> Located at the front of the property, the sunroom features tiled flooring, fluorescent lighting, a sliding door, casement windows, and large double doors providing access to the front yard.
- Located on the lower level are two multipurpose rooms. Although they are just shy of legal height, the possibilities are endless, with access to the under-house storage area.
> Multipurpose room 1 features tiled flooring, casement windows with security bars/screens, fluorescent lighting, and a sliding door providing access to the patio and yard.
> Multipurpose room 2 features tiled flooring, sliding windows, fluorescent lighting, and built-in storage.
- Outdoor entertaining will be effortless, thanks to the many options this property offers, combined with a kid-friendly yard that encapsulates everything there is to love about Queensland living.
> A balcony located on the top level overlooks the yard.
> A patio located directly beneath the balcony.
> A large alfresco area is located in the backyard, complemented by a dedicated stone area perfect for a potential fire pit.
- Secure parking for two vehicles is provided by the double car garage, equipped with electric doors and internal access, along with additional parking available on the street.
- The laundry, located on the lower level, features tiled flooring, storage cupboards, and large dual wash tubs.
- This property also features:
> Large 592sqm corner block
> Elevated North/South facing aspect with beautiful views and bay breezes
> Side access via Ferrier St
> Large under-house storage area
> NBN connected - Fibre to the Premise
> Freshly painted throughout
> New blinds, curtains and modern lighting throughout
> Large 10,000L water tank with pump
> Dedicated workshop with solid bench
- School Catchments:
> Aspley East State Primary School
> Aspley State High School
- Amenities nearby:
> Public transport 279m
> Robinson Rd Market Place 280m
> Aspley East State School 569m
> Marchant Park 637m
> Aspley Hypermarket 1.1km
> Aspley State High School 1.4km
> Kidspace playground 1.5km
> Westfield Chermside 1.59km
> Airport 9.5km
> CBD 10.8km
Vacant and ready to go just in time for Christmas, this home won't last long so call to inspect today.