Zillmere 70 Crowley Street
4 1 1
Property Details
Almost Aspley! Immaculately Presented Cottage
Vacant and positioned in the "Asp-mere" pocket of Zillmere, just 235m from the Aspley border, this property offers a perfect blend of charm and potential. Nestled on a generous 647sqm block and boasting endless opportunities for entertaining, featuring spacious indoor and outdoor living areas. The ultimate haven for those seeking a lifestyle of comfort and versatility.
- Large 647sqm block
- Vacant and ready to move in
- Post war construction
- Fully enclosed fence line
- Large dual decks
- Kabana
- Side access with oversized garage
- Quality European appliances
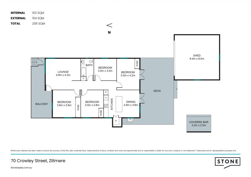
- 4 light-filled bedrooms:
> The primary bedroom offers split-system air conditioning, ceiling fan with lighting, carpet flooring, sliding windows, venetian blinds, curtains, and glass French doors giving you access to the rear entreating area and yard.
> Bedroom 2 features split-system air conditioning, carpet flooring, a ceiling fan, standard lighting and sliding windows with venetian blind.
> Bedroom 3 features split-system air conditioning, carpet flooring, a ceiling fan, down lighting and sliding windows with venetian blind, and a built-in robe.
> Bedroom 4 features box window air conditioning, carpet flooring, a ceiling fan with lighting and sliding windows with venetian blinds.
- Bathroom:
> The main bathroom, located in the heart of the home, features a shower over bath configuration, a single-basin vanity with storage, a wall-mounted vanity mirror, tiled flooring, heat/light/extraction combo, frosted louver window and a toilet.
- Eat-in Kitchen features:
> AEG 4 burner cooktop
> AEG 600mm wall oven
> Stainless-steel recessed rangehood
> laminate cabinetry
> laminate benchtops
> Large double basin stainless steel sink
> Walk-in pantry
> Loads of bench and cupboard space
> Grey splashback
> Sliding windows
> Oyster & down lighting
> Ceiling fan
> Split-system air-conditioning
- Living and dining spaces inside and out:
> The large lounge room flows effortlessly to the kitchen/dining and out to the outdoor entertaining area, featuring split-system air conditioning, timber look flooring, down lighting, split-system air-conditioning, sliding windows with curtains and access to the front deck.
> Dining located at the rear of the property features timber look flooring, split-system air-conditioning, ceiling fan, down lighting and glass French doors giving you access to the rear outdoor entertaining area.
- Outdoor entertaining will be a breeze with the many options this residence provides, from the large front covered deck to the alfresco deck located at the rear of the property teamed up with the kabana, all offering access to the private, lush green backyard Together, these spaces encapsulate everything there is to love about the Queensland lifestyle.
- Car accommodation for 1 vehicle is provided by the secure oversized garage with side access and additional parking on the driveway as well as on street parking available.
- This property also features:
> North/South facing aspect
> Post war construction
> Large 647sqm block
> Fully enclosed fence line
- School Catchments:
> Zillmere State Primary School
> Aspley State High School
> St. Dympna's Primary School
> St. Kevins Primary School
- Amenities nearby:
> Public transport (bus stop Robinson Rd) 252m
> Rainbow Lorikeet Park 556m
> Downfall creek bike and walking paths 674m
> Public transport (train station Zillmere) 700m
> 7th Brigade Park 1.4km
> Kids Space Play Ground 1.56km
> Geebung RSL 1.64km
> Chermside Shopping Centre 1.87km
> Chermside Dog Park 2.15m
> Chermside Library and Chermside swimming pool 2.36km
- Short drive to:
> Airport 8.87km
> CBD 11.38km
Opportunities like this don't come along very often and will present the astute buyer with a solid family home to enjoy from day one.
- Large 647sqm block
- Vacant and ready to move in
- Post war construction
- Fully enclosed fence line
- Large dual decks
- Kabana
- Side access with oversized garage
- Quality European appliances
- 4 light-filled bedrooms:
> The primary bedroom offers split-system air conditioning, ceiling fan with lighting, carpet flooring, sliding windows, venetian blinds, curtains, and glass French doors giving you access to the rear entreating area and yard.
> Bedroom 2 features split-system air conditioning, carpet flooring, a ceiling fan, standard lighting and sliding windows with venetian blind.
> Bedroom 3 features split-system air conditioning, carpet flooring, a ceiling fan, down lighting and sliding windows with venetian blind, and a built-in robe.
> Bedroom 4 features box window air conditioning, carpet flooring, a ceiling fan with lighting and sliding windows with venetian blinds.
- Bathroom:
> The main bathroom, located in the heart of the home, features a shower over bath configuration, a single-basin vanity with storage, a wall-mounted vanity mirror, tiled flooring, heat/light/extraction combo, frosted louver window and a toilet.
- Eat-in Kitchen features:
> AEG 4 burner cooktop
> AEG 600mm wall oven
> Stainless-steel recessed rangehood
> laminate cabinetry
> laminate benchtops
> Large double basin stainless steel sink
> Walk-in pantry
> Loads of bench and cupboard space
> Grey splashback
> Sliding windows
> Oyster & down lighting
> Ceiling fan
> Split-system air-conditioning
- Living and dining spaces inside and out:
> The large lounge room flows effortlessly to the kitchen/dining and out to the outdoor entertaining area, featuring split-system air conditioning, timber look flooring, down lighting, split-system air-conditioning, sliding windows with curtains and access to the front deck.
> Dining located at the rear of the property features timber look flooring, split-system air-conditioning, ceiling fan, down lighting and glass French doors giving you access to the rear outdoor entertaining area.
- Outdoor entertaining will be a breeze with the many options this residence provides, from the large front covered deck to the alfresco deck located at the rear of the property teamed up with the kabana, all offering access to the private, lush green backyard Together, these spaces encapsulate everything there is to love about the Queensland lifestyle.
- Car accommodation for 1 vehicle is provided by the secure oversized garage with side access and additional parking on the driveway as well as on street parking available.
- This property also features:
> North/South facing aspect
> Post war construction
> Large 647sqm block
> Fully enclosed fence line
- School Catchments:
> Zillmere State Primary School
> Aspley State High School
> St. Dympna's Primary School
> St. Kevins Primary School
- Amenities nearby:
> Public transport (bus stop Robinson Rd) 252m
> Rainbow Lorikeet Park 556m
> Downfall creek bike and walking paths 674m
> Public transport (train station Zillmere) 700m
> 7th Brigade Park 1.4km
> Kids Space Play Ground 1.56km
> Geebung RSL 1.64km
> Chermside Shopping Centre 1.87km
> Chermside Dog Park 2.15m
> Chermside Library and Chermside swimming pool 2.36km
- Short drive to:
> Airport 8.87km
> CBD 11.38km
Opportunities like this don't come along very often and will present the astute buyer with a solid family home to enjoy from day one.
Meet The Agents
The primary bedroom offers split-system air conditioning, ceiling fan with lighting, carpet flooring, sliding windows, venetian blinds, curtains, and glass French doors giving you access to the rear entreating area and yard.
> Bedroom 2 features split-system air conditioning, carpet flooring, a ceiling fan, standard lighting and sliding windows with venetian blind.
> Bedroom 3 features split-system air conditioning, carpet flooring, a ceiling fan, down lighting and sliding windows with venetian blind, and a built-in robe.
> Bedroom 4 features box window air conditioning, carpet flooring, a ceiling fan with lighting and sliding windows with venetian blinds.
- Bathroom:
> The main bathroom, located in the heart of the home, features a shower over bath configuration, a single-basin vanity with storage, a wall-mounted vanity mirror, tiled flooring, heat/light/extraction combo, frosted louver window and a toilet.
- Eat-in Kitchen features:
> AEG 4 burner cooktop
> AEG 600mm wall oven
> Stainless-steel recessed rangehood
> laminate cabinetry
> laminate benchtops
> Large double basin stainless steel sink
> Walk-in pantry
> Loads of bench and cupboard space
> Grey splashback
> Sliding windows
> Oyster & down lighting
> Ceiling fan
> Split-system air-conditioning
- Living and dining spaces inside and out:
> The large lounge room flows effortlessly to the kitchen/dining and out to the outdoor entertaining area, featuring split-system air conditioning, timber look flooring, down lighting, split-system air-conditioning, sliding windows with curtains and access to the front deck.
> Dining located at the rear of the property features timber look flooring, split-system air-conditioning, ceiling fan, down lighting and glass French doors giving you access to the rear outdoor entertaining area.
- Outdoor entertaining will be a breeze with the many options this residence provides, from the large front covered deck to the alfresco deck located at the rear of the property teamed up with the kabana, all offering access to the private, lush green backyard Together, these spaces encapsulate everything there is to love about the Queensland lifestyle.
- Car accommodation for 1 vehicle is provided by the secure oversized garage with side access and additional parking on the driveway as well as on street parking available.
- This property also features:
> North/South facing aspect
> Post war construction
> Large 647sqm block
> Fully enclosed fence line
- School Catchments:
> Zillmere State Primary School
> Aspley State High School
> St. Dympna's Primary School
> St. Kevins Primary School
- Amenities nearby:
> Public transport (bus stop Robinson Rd) 252m
> Rainbow Lorikeet Park 556m
> Downfall creek bike and walking paths 674m
> Public transport (train station Zillmere) 700m
> 7th Brigade Park 1.4km
> Kids Space Play Ground 1.56km
> Geebung RSL 1.64km
> Chermside Shopping Centre 1.87km
> Chermside Dog Park 2.15m
> Chermside Library and Chermside swimming pool 2.36km
- Short drive to:
> Airport 8.87km
> CBD 11.38km
Opportunities like this don't come along very often and will present the astute buyer with a solid family home to enjoy from day one." />