Stafford 49 Leiper Street
3 2 4
Property Details
Secluded city view retreat
Free building and pest report available on request.
Positioned high on the hill up a private driveway with protected city views thanks to the heritage listing on the house in front, this chic inner city retreat will have you feeling like you've escaped to Byron yet somehow you're only seconds to shops, transport and a short drive to the CBD.
- Uninterrupted panoramic views of the city & Mt Coot-tha
- Meticulously renovated
- Rich timber flooring & extra-high ceilings throughout
- Fully fenced 763sqm block
- Ceiling fans & security screens throughout
- NBN connected
- Internal & external stairs
- Council rates $564.18pq approx.
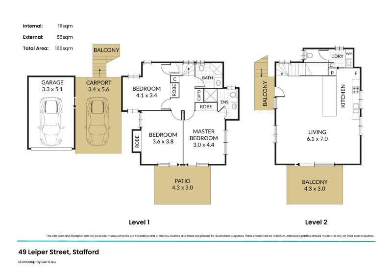
- 3 well-appointed bedrooms:
> The master is a light-filled space boasting timber flooring, sliding glass door onto the leafy patio, frosted sliding window, security screens, block-out roller blinds, curtains, ceiling fan, down-lighting, built-in-wardrobe and ensuite.
> Bedroom 2 features timber flooring, sliding glass door onto the leafy patio, frosted sliding windows, security screens, block-out roller blinds, curtains, ceiling fan, down-lighting and built-in-wardrobe.
> Bedroom 3 features timber flooring, sliding windows, security screens, block-out roller blinds, ceiling fan, down-lighting, built-in-wardrobe and under stair storage.
- 2.5 chic bathrooms:
> The main bathroom features floor-to-ceiling tiles, walk-in shower with wall niche, monsoon showerhead, vessel timber vanity, mirrored wall cabinet, down-lighting, pendant light, frosted window, dual towel rail and toilet. Linen cupboard conveniently located just outside in the hall.
> The ensuite to the master features floor-to-ceiling tiles, walk-in shower with wall niche, detachable showerhead, vessel vanity with timber countertop, extra-wide mirrored wall cabinet, down-lighting, frosted windows, dual towel rail and toilet.
> Conveniently located on the upper level is the laundry/powder room featuring built in cabinetry, laminate bench tops, tiled splashback, wash basin, washing machine space and toilet.
- Kitchen features:
> Fisher & Paykel double draw integrated dishwasher
> Bellini 4 burner gas cooktop
> Euro stainless-steel oven
> Stainless-steel rangehood
> Double basin Arete stone basin
> Hardwood timber flooring
> Built-in breakfast bar
> Waterfall laminate benchtops
> Soft close cabinetry
> Pull out draws in pantry
> Tiled splash back
> Down-lighting
> Sliding glass windows with roller blind
> Prime position overlooking the living, dining and outdoor entertaining spaces
- A multitude of living spaces inside and out:
> The light-filled open plan living/dining areas located at the heart of the home flow effortlessly to the kitchen and through to the front deck overlooking the leafy green suburban vistas, city skyline and Mt Coot-tha. Featuring hardwood polished flooring, Daikin split-system air-conditioning, raked ceilings, down-lighting, ceiling fan, sliding windows with security screens. The front deck features stained timber flooring, timber railing, chic ceiling fan/light combo and outdoor oyster lighting.
> The spacious kid/pet friendly yard boasts an array of built-up garden beds, low maintenance lawn and rainwater tank with pump neatly tucked behind the garage encapsulating everything there is to love about our Queensland lifestyle.
- Spades of car accommodation thanks to a lock up garage, carport, dual car spaces at the front of the house as well as plenty of on street parking available.
- This property also features:
> Recently updated 250L Dux Proflo hot water system
> Low maintenance colour bond exterior
- Amenities nearby:
> Local shops and cafes 250m
> Public transport (bus stop –Clifford St) 300m
> Stafford State School 400m
> Short walk to Padua College 750m
> Gibson Park 800m
> Stafford City Shopping Centre 900m
> Kedron Brook bike paths 1km
> Everton Park State High School 2.4km
> Prince Charles Hospital 3.1km
> Westfield Chermside 3.5km
> Public transport (Enoggera train station) 3.8km
> CBD 9km
> Airport 10.7km
Lovingly held and highly coveted, sadly the time has come for our sellers to make a sea change so move fast to inspect today.
Positioned high on the hill up a private driveway with protected city views thanks to the heritage listing on the house in front, this chic inner city retreat will have you feeling like you've escaped to Byron yet somehow you're only seconds to shops, transport and a short drive to the CBD.
- Uninterrupted panoramic views of the city & Mt Coot-tha
- Meticulously renovated
- Rich timber flooring & extra-high ceilings throughout
- Fully fenced 763sqm block
- Ceiling fans & security screens throughout
- NBN connected
- Internal & external stairs
- Council rates $564.18pq approx.
- 3 well-appointed bedrooms:
> The master is a light-filled space boasting timber flooring, sliding glass door onto the leafy patio, frosted sliding window, security screens, block-out roller blinds, curtains, ceiling fan, down-lighting, built-in-wardrobe and ensuite.
> Bedroom 2 features timber flooring, sliding glass door onto the leafy patio, frosted sliding windows, security screens, block-out roller blinds, curtains, ceiling fan, down-lighting and built-in-wardrobe.
> Bedroom 3 features timber flooring, sliding windows, security screens, block-out roller blinds, ceiling fan, down-lighting, built-in-wardrobe and under stair storage.
- 2.5 chic bathrooms:
> The main bathroom features floor-to-ceiling tiles, walk-in shower with wall niche, monsoon showerhead, vessel timber vanity, mirrored wall cabinet, down-lighting, pendant light, frosted window, dual towel rail and toilet. Linen cupboard conveniently located just outside in the hall.
> The ensuite to the master features floor-to-ceiling tiles, walk-in shower with wall niche, detachable showerhead, vessel vanity with timber countertop, extra-wide mirrored wall cabinet, down-lighting, frosted windows, dual towel rail and toilet.
> Conveniently located on the upper level is the laundry/powder room featuring built in cabinetry, laminate bench tops, tiled splashback, wash basin, washing machine space and toilet.
- Kitchen features:
> Fisher & Paykel double draw integrated dishwasher
> Bellini 4 burner gas cooktop
> Euro stainless-steel oven
> Stainless-steel rangehood
> Double basin Arete stone basin
> Hardwood timber flooring
> Built-in breakfast bar
> Waterfall laminate benchtops
> Soft close cabinetry
> Pull out draws in pantry
> Tiled splash back
> Down-lighting
> Sliding glass windows with roller blind
> Prime position overlooking the living, dining and outdoor entertaining spaces
- A multitude of living spaces inside and out:
> The light-filled open plan living/dining areas located at the heart of the home flow effortlessly to the kitchen and through to the front deck overlooking the leafy green suburban vistas, city skyline and Mt Coot-tha. Featuring hardwood polished flooring, Daikin split-system air-conditioning, raked ceilings, down-lighting, ceiling fan, sliding windows with security screens. The front deck features stained timber flooring, timber railing, chic ceiling fan/light combo and outdoor oyster lighting.
> The spacious kid/pet friendly yard boasts an array of built-up garden beds, low maintenance lawn and rainwater tank with pump neatly tucked behind the garage encapsulating everything there is to love about our Queensland lifestyle.
- Spades of car accommodation thanks to a lock up garage, carport, dual car spaces at the front of the house as well as plenty of on street parking available.
- This property also features:
> Recently updated 250L Dux Proflo hot water system
> Low maintenance colour bond exterior
- Amenities nearby:
> Local shops and cafes 250m
> Public transport (bus stop –Clifford St) 300m
> Stafford State School 400m
> Short walk to Padua College 750m
> Gibson Park 800m
> Stafford City Shopping Centre 900m
> Kedron Brook bike paths 1km
> Everton Park State High School 2.4km
> Prince Charles Hospital 3.1km
> Westfield Chermside 3.5km
> Public transport (Enoggera train station) 3.8km
> CBD 9km
> Airport 10.7km
Lovingly held and highly coveted, sadly the time has come for our sellers to make a sea change so move fast to inspect today.