Murrumba Downs 7/37 Wagner Road
3 2 2
Property Details
Immaculate townhouse in secured gated complex
Nestled in a secure gated community, this well-maintained townhouse offers a practical floor plan, making it perfect for those seeking security and convenience. Situated within walking distance to parks and public transport (bus stop), and just a short distance from local shops, schools, and Bruce Highway.
- Secure gated community
- Open plan living/dining
- Updated kitchen benchtops and appliances
- Communal swimming pool and entertaining area
- Split-system air conditioning in living & two bedrooms
- Fully enclosed backyard
- NBN connected
- Gas hot water system
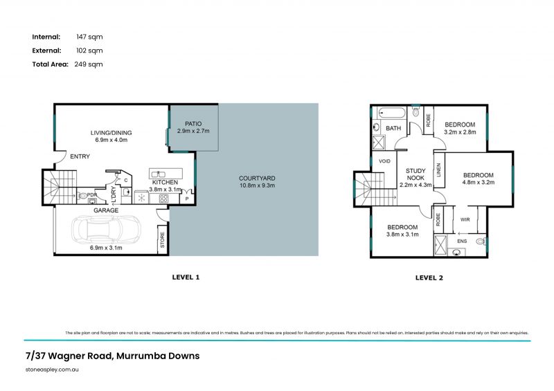
- 3 bedrooms:
> The master bedroom offers split system air-conditioning, carpet flooring, dual built-in robes, sliding windows with fly screens, block out roller blinds, floor-to-ceiling curtains, ceiling fan with in-built light, down lighting, and an ensuite.
> Bedroom 2 offers split system air-conditioning, carpet flooring, built in-robe, sash windows with fly screens, blackout roller blinds, floor-to-ceiling curtains, and ceiling fan with in-built lighting.
> Bedroom 3 offers carpet flooring, built in-robe, sliding window with fly screens, vertical blinds, and ceiling fan with in-built lighting.
- 2.5 bathrooms:
> The main bathroom features a shower with a fixed shower head, separate bathtub, single basin vanity with storage, tile splash back and flooring, wall mounted vanity mirror, dual towel rail, hand towel rail, sash window with privacy glass, extractor/heater/light combo, and separate toilet.
> The ensuite to master bedroom features a large shower with a fixed shower head, single basin vanity with storage, tile splash back and flooring, wall mounted vanity mirror, dual towel rail, hand towel rail, sliding window with privacy glass, extractor/heater/light combo, and toilet.
> Conveniently located on the lower level is a separate powder room adjoining the laundry.
- The open kitchen features:
> Westinghouse 4 burner ceramic cooktop
> Westinghouse 600mm stainless-steel oven
> Stainless-steel retractable rangehood
> Bosch stainless-steel dishwasher
> Tile splashback and flooring
> Stainless-steel double sink
> Island bench with built-in breakfast bar
> Down-lighting
> Laminate benches and cabinetry
> 900mm wide fridge cavity
> Sliding windows with vertical blinds
- Living/entertaining:
> The combined lounge/dining area, located on the lower level offers split-system air conditioning, high ceilings, tiled flooring, down lighting, sheer floor-to-ceiling curtains, vertical blinds, and sliding door access to the covered outdoor entertaining area and yard, offering a seamless flow of living space.
> Located at the top of the stairs is the study nook/ sitting area, offering carpet flooring, down lighting, and a large linen cupboard.
- Car accommodation for 1 thanks to the single lock-up garage with electric door, internal access, access to yard, storage cupboard. Additional space available on driveway plus plenty of visitor parking throughout the complex.
- School catchment:
> Undurba State School 3.8km
> Murrumba State Secondary College 4.6km
- Amenities nearby:
> Public transport (bus stop Pine River Drive) 450m
> Keith Houghton Park 500m
> Murrumba Downs Shopping Centre (Coles) 2.5km
> Bruce Highway entrance (South bound) 2.7km
> Castle Hill Village (shops & medical centre) 3.4km
> John Oxley Reserve 3.6km
> Living Faith Lutheran Primary School 4.8km
> Public transport (train station Kallangur) 4.9km
> Westfield North Lakes 6.9km
How to book & inspect this property:
Arranging an inspection is easy. If you are on our website, simply click 'Book An Inspection', enter your details and confirm your booking by selecting your preferred date and time.
Alternatively, on realestate.com.au select 'Request an Inspection' and select your preferred date and time, along with your details.
Once confirmed, you'll automatically receive a confirmation email & SMS along with any updates that may occur for that property & inspection time.
If no one registers for an inspection time – then that inspection may not proceed. So, DON'T MISS OUT – Book for an inspection time today!
- Secure gated community
- Open plan living/dining
- Updated kitchen benchtops and appliances
- Communal swimming pool and entertaining area
- Split-system air conditioning in living & two bedrooms
- Fully enclosed backyard
- NBN connected
- Gas hot water system
- 3 bedrooms:
> The master bedroom offers split system air-conditioning, carpet flooring, dual built-in robes, sliding windows with fly screens, block out roller blinds, floor-to-ceiling curtains, ceiling fan with in-built light, down lighting, and an ensuite.
> Bedroom 2 offers split system air-conditioning, carpet flooring, built in-robe, sash windows with fly screens, blackout roller blinds, floor-to-ceiling curtains, and ceiling fan with in-built lighting.
> Bedroom 3 offers carpet flooring, built in-robe, sliding window with fly screens, vertical blinds, and ceiling fan with in-built lighting.
- 2.5 bathrooms:
> The main bathroom features a shower with a fixed shower head, separate bathtub, single basin vanity with storage, tile splash back and flooring, wall mounted vanity mirror, dual towel rail, hand towel rail, sash window with privacy glass, extractor/heater/light combo, and separate toilet.
> The ensuite to master bedroom features a large shower with a fixed shower head, single basin vanity with storage, tile splash back and flooring, wall mounted vanity mirror, dual towel rail, hand towel rail, sliding window with privacy glass, extractor/heater/light combo, and toilet.
> Conveniently located on the lower level is a separate powder room adjoining the laundry.
- The open kitchen features:
> Westinghouse 4 burner ceramic cooktop
> Westinghouse 600mm stainless-steel oven
> Stainless-steel retractable rangehood
> Bosch stainless-steel dishwasher
> Tile splashback and flooring
> Stainless-steel double sink
> Island bench with built-in breakfast bar
> Down-lighting
> Laminate benches and cabinetry
> 900mm wide fridge cavity
> Sliding windows with vertical blinds
- Living/entertaining:
> The combined lounge/dining area, located on the lower level offers split-system air conditioning, high ceilings, tiled flooring, down lighting, sheer floor-to-ceiling curtains, vertical blinds, and sliding door access to the covered outdoor entertaining area and yard, offering a seamless flow of living space.
> Located at the top of the stairs is the study nook/ sitting area, offering carpet flooring, down lighting, and a large linen cupboard.
- Car accommodation for 1 thanks to the single lock-up garage with electric door, internal access, access to yard, storage cupboard. Additional space available on driveway plus plenty of visitor parking throughout the complex.
- School catchment:
> Undurba State School 3.8km
> Murrumba State Secondary College 4.6km
- Amenities nearby:
> Public transport (bus stop Pine River Drive) 450m
> Keith Houghton Park 500m
> Murrumba Downs Shopping Centre (Coles) 2.5km
> Bruce Highway entrance (South bound) 2.7km
> Castle Hill Village (shops & medical centre) 3.4km
> John Oxley Reserve 3.6km
> Living Faith Lutheran Primary School 4.8km
> Public transport (train station Kallangur) 4.9km
> Westfield North Lakes 6.9km
How to book & inspect this property:
Arranging an inspection is easy. If you are on our website, simply click 'Book An Inspection', enter your details and confirm your booking by selecting your preferred date and time.
Alternatively, on realestate.com.au select 'Request an Inspection' and select your preferred date and time, along with your details.
Once confirmed, you'll automatically receive a confirmation email & SMS along with any updates that may occur for that property & inspection time.
If no one registers for an inspection time – then that inspection may not proceed. So, DON'T MISS OUT – Book for an inspection time today!