Mcdowall 15 Brando Street
4 2 2
Property Details
Spacious private family home
This beautiful family home is set on an elevated block, in a quiet and peaceful street just a short walk from parkland, and only minutes' walk from bushland reserve, McDowall State School and public transport options. Offering room for the extended family, dual living or work from home office, this home will fulfil all the family's needs with ease.
- Elevated 556sqm block
- Semi dual living potential
- Multiple living areas to suit the whole family
- Large covered entertaining deck
- Solar hot water
- Great storage options
- Fully fenced pet friendly yard & garden shed
- McDowall State School catchment
This home offers:
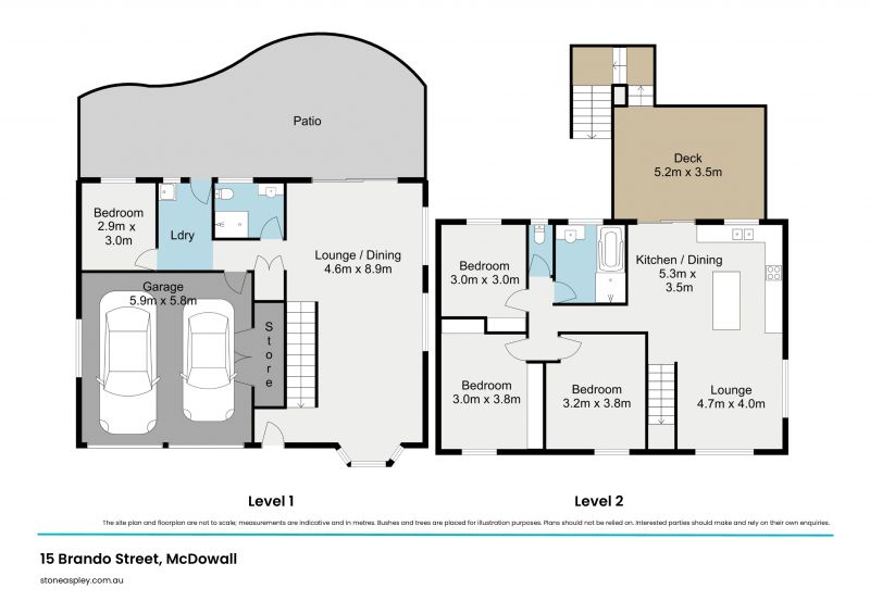
4 bedrooms
- Bedroom one is the Master bedroom featuring timber flooring, split system air-conditioning, ceiling fan and large built-in-robe with mirrored doors.
- Bedrooms two and three are all located upstairs and feature timber flooring, ceiling fans and built-in-robes.
- Bedroom four is a good size bedroom on the ground floor, with easy access to the downstairs bathroom and living area, making it perfect for teenager's or elderly parents.
2 bathrooms
- Bathroom one is the home's main bathroom and features tiled flooring, shower, separate bath, single vanity, and separate toilet.
- Bathroom two is conveniently located downstairs and features tiled flooring, shower, single vanity, and toilet.
The home's renovated kitchen shares a great open plan with the home's upstairs living and meals areas. Features include:
- Timber-look flooring
- Ceiling fan
- Island bench
- Breakfast bar seating x3
- Stainless dishwasher
- Electric oven & cooktop
- Double sink
- Abundance of bench space and storage
Living/Entertaining
- Living room and meals area adjoin the home's kitchen in a great open space and features timber-look flooring, split system air-conditioning and an elevated view across the estate.
- Family room is a large living space located on the ground floor and features tiled flooring, air-conditioning, bay window overlooking the tree-lined street and access to the back yard.
- Large covered outdoor entertaining deck extends out from the home's upstairs meals area and features timber decking, lighting, and outdoor power points.
- Downstairs paved entertainment area and undercover area is perfect for the extended entertaining or kids play area.
- Laundry features tiled flooring, washtub, and access to the back yard.
- Double lockup garage features x1 remote and x1 manual doors, storage shelving, large storage cupboard and internal access.
Nearby amenities:
- 397m to Bisset Place Park with playground
- 304m to Bus Stop - Hoffman Street
- 565m to McDowall State School
- 760m to Northside Christian College & Northwest Private Hospital
- 924m to McDowall Village Shopping Centre
- 1km to Downfall creek Bushland Centre / Raven Street Reserve
- 2.8km to The Prince Charles Hospital
- 2.9km to Prince of Peace Lutheran College
- 3.7km to Westfield Chermside
- 9.5km Brisbane CBD
- 12.3km to Brisbane Domestic Airport
Homes with potential like this don't become available often so call John from Stone Real Estate today to arrange a private inspection or make sure you pencil in this weekend's open homes.
- Elevated 556sqm block
- Semi dual living potential
- Multiple living areas to suit the whole family
- Large covered entertaining deck
- Solar hot water
- Great storage options
- Fully fenced pet friendly yard & garden shed
- McDowall State School catchment
This home offers:
4 bedrooms
- Bedroom one is the Master bedroom featuring timber flooring, split system air-conditioning, ceiling fan and large built-in-robe with mirrored doors.
- Bedrooms two and three are all located upstairs and feature timber flooring, ceiling fans and built-in-robes.
- Bedroom four is a good size bedroom on the ground floor, with easy access to the downstairs bathroom and living area, making it perfect for teenager's or elderly parents.
2 bathrooms
- Bathroom one is the home's main bathroom and features tiled flooring, shower, separate bath, single vanity, and separate toilet.
- Bathroom two is conveniently located downstairs and features tiled flooring, shower, single vanity, and toilet.
The home's renovated kitchen shares a great open plan with the home's upstairs living and meals areas. Features include:
- Timber-look flooring
- Ceiling fan
- Island bench
- Breakfast bar seating x3
- Stainless dishwasher
- Electric oven & cooktop
- Double sink
- Abundance of bench space and storage
Living/Entertaining
- Living room and meals area adjoin the home's kitchen in a great open space and features timber-look flooring, split system air-conditioning and an elevated view across the estate.
- Family room is a large living space located on the ground floor and features tiled flooring, air-conditioning, bay window overlooking the tree-lined street and access to the back yard.
- Large covered outdoor entertaining deck extends out from the home's upstairs meals area and features timber decking, lighting, and outdoor power points.
- Downstairs paved entertainment area and undercover area is perfect for the extended entertaining or kids play area.
- Laundry features tiled flooring, washtub, and access to the back yard.
- Double lockup garage features x1 remote and x1 manual doors, storage shelving, large storage cupboard and internal access.
Nearby amenities:
- 397m to Bisset Place Park with playground
- 304m to Bus Stop - Hoffman Street
- 565m to McDowall State School
- 760m to Northside Christian College & Northwest Private Hospital
- 924m to McDowall Village Shopping Centre
- 1km to Downfall creek Bushland Centre / Raven Street Reserve
- 2.8km to The Prince Charles Hospital
- 2.9km to Prince of Peace Lutheran College
- 3.7km to Westfield Chermside
- 9.5km Brisbane CBD
- 12.3km to Brisbane Domestic Airport
Homes with potential like this don't become available often so call John from Stone Real Estate today to arrange a private inspection or make sure you pencil in this weekend's open homes.