Ferny Hills 30 Anora Crescent
3 1 2
Property Details
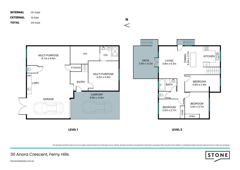
Dual Level Living
Located in Ferny Hills Cresent corridor perched on an elevated North/South facing 779sqm block, this renovated home boasts a family friendly flexible floorplan spanning two levels teamed up with the rear deck giving you access to the large kid/pet friendly yard encapsulating everything there is to love about our Queensland lifestyle.
- Solar system
- Rainwater tank with pump
- Everhot electric hot water system
- Air-conditioning & ceiling fans
- Low maintenance yard
- Just moments from parks, schools & shops, perfect for the active lifestyle
- Carpet and timber flooring throughout
- Nothing to do but move into one of Ferny Hills best kept secret
- 3 light-filled bedrooms
> Master bedroom located on the top-level features ceiling fan with in-built lighting, sliding windows, fly screens, venetian blinds, rich timber flooring and built-in robe.
> Bedroom 2 features ceiling fan with in-built lighting, sliding windows, fly screens, venetian blinds, rich timber flooring and built-in robe.
> Bedroom 3 features ceiling fan with in-built lighting, sliding windows, rich timber flooring and space perfect for a study nook.
> There is another room on the lower level of the home, this room is a multi-purpose room previous used as a bedroom because it also includes a wet room and a walk-in-wardrobe
- Bathroom
> The main bathroom located upstairs features shower over bath configuration, detachable shower head, floating vanity with storage, vanity mirror, extractor, standard light, sliding window with venetian blind and separate toilet.
> Located on the lower level of the property is a wet room offering a shower with dual shower heads (detachable and monsoon), floating vanity with storage, vanity mirror, extractor, standard light, sliding windows and toilet.
> Located on the lower level of the property is a separate toilet next to the laundry.
- Chefs kitchen with:
> Laminate benchtops
> Omega 4 burner electric cooktop
> Bellini stainless-steel 600mm wall mounted oven
> Stainless-steel rangehood
> Westinghouse stainless-steel dishwasher
> Stainless-steel dual basin sink
> Tiled splashback
> Fridge cavity (extra wide suitable for double door fridges)
> Rich timber flooring
> Pendant and down-lighting
> Prime position overlooking the living, dining and outdoor entertaining spaces.
- Living/dining:
> The open plan main lounge/dining areas located at the heart of the home flow effortlessly to the kitchen and through to the external of the property. The light colour scheme adds to the expansive nature of the home, boasting split-system air-conditioning, down-lighting, rich timber flooring and bi-fold doors giving you access to the deck.
> Whilst being shy of legal height the possibilities are only limited by your imagination the lower level features a large multipurpose room perfect for home office or teenage retreat with timber look vinyl flooring, down lighting, power points and access to the garage as well as the yard.
> Located just off the entry to the home on the lower level is a large multipurpose room boasting carpet flooring, split-system air-conditioning, sliding windows with blinds leading through a wet room (full bathroom facilities) to another multipurpose room (previously used as a walk-in-wardrobe) with sliding windows and wall shelving.
- Located on the entry level is the Laundry in the large multipurpose room featuring laminate cabinetry, stone benchtop, tiled splashback and sliding window.
- Outdoor entertaining will be a breeze thanks to the elevated rear deck giving you access to the large kid/pet friendly yard encapsulating everything there is to love about our Queensland lifestyle.
- Car accommodation for 2 vehicles thanks to the carport as well as the secure garage with through access to the back yard and additional parking on the driveway as well as on street parking.
- School catchment:
> Patricks Road State Primary School
> Ferny Grove State High School
- Amenities nearby:
> Public Transport (Bus stop) Gordon Rd 108m
> George Willmore Park 386m
> Public Transport (Train station) 560m
> Pure Tennis Centre Ferny Hills 597m
> Arana Hills Library 1.07km
> Arana Hills Plaza 1.98km
> Keperra Country Golf Club 1.98km
> Tafe Queensland Grovely Campus 2.4km
How to book & inspect this property:
Arranging an inspection is easy. If you are on our website, simply click 'Book An Inspection', enter your details and confirm your booking by selecting your preferred date and time.
Alternatively, on realestate.com.au select 'Request an Inspection' and select your preferred date and time, along with your details.
Once confirmed, you'll automatically receive a confirmation email & SMS along with any updates that may occur for that property & inspection time.
If no one registers for an inspection time - then that inspection may not proceed. So, DON'T MISS OUT - Book for an inspection time today!
- Solar system
- Rainwater tank with pump
- Everhot electric hot water system
- Air-conditioning & ceiling fans
- Low maintenance yard
- Just moments from parks, schools & shops, perfect for the active lifestyle
- Carpet and timber flooring throughout
- Nothing to do but move into one of Ferny Hills best kept secret
- 3 light-filled bedrooms
> Master bedroom located on the top-level features ceiling fan with in-built lighting, sliding windows, fly screens, venetian blinds, rich timber flooring and built-in robe.
> Bedroom 2 features ceiling fan with in-built lighting, sliding windows, fly screens, venetian blinds, rich timber flooring and built-in robe.
> Bedroom 3 features ceiling fan with in-built lighting, sliding windows, rich timber flooring and space perfect for a study nook.
> There is another room on the lower level of the home, this room is a multi-purpose room previous used as a bedroom because it also includes a wet room and a walk-in-wardrobe
- Bathroom
> The main bathroom located upstairs features shower over bath configuration, detachable shower head, floating vanity with storage, vanity mirror, extractor, standard light, sliding window with venetian blind and separate toilet.
> Located on the lower level of the property is a wet room offering a shower with dual shower heads (detachable and monsoon), floating vanity with storage, vanity mirror, extractor, standard light, sliding windows and toilet.
> Located on the lower level of the property is a separate toilet next to the laundry.
- Chefs kitchen with:
> Laminate benchtops
> Omega 4 burner electric cooktop
> Bellini stainless-steel 600mm wall mounted oven
> Stainless-steel rangehood
> Westinghouse stainless-steel dishwasher
> Stainless-steel dual basin sink
> Tiled splashback
> Fridge cavity (extra wide suitable for double door fridges)
> Rich timber flooring
> Pendant and down-lighting
> Prime position overlooking the living, dining and outdoor entertaining spaces.
- Living/dining:
> The open plan main lounge/dining areas located at the heart of the home flow effortlessly to the kitchen and through to the external of the property. The light colour scheme adds to the expansive nature of the home, boasting split-system air-conditioning, down-lighting, rich timber flooring and bi-fold doors giving you access to the deck.
> Whilst being shy of legal height the possibilities are only limited by your imagination the lower level features a large multipurpose room perfect for home office or teenage retreat with timber look vinyl flooring, down lighting, power points and access to the garage as well as the yard.
> Located just off the entry to the home on the lower level is a large multipurpose room boasting carpet flooring, split-system air-conditioning, sliding windows with blinds leading through a wet room (full bathroom facilities) to another multipurpose room (previously used as a walk-in-wardrobe) with sliding windows and wall shelving.
- Located on the entry level is the Laundry in the large multipurpose room featuring laminate cabinetry, stone benchtop, tiled splashback and sliding window.
- Outdoor entertaining will be a breeze thanks to the elevated rear deck giving you access to the large kid/pet friendly yard encapsulating everything there is to love about our Queensland lifestyle.
- Car accommodation for 2 vehicles thanks to the carport as well as the secure garage with through access to the back yard and additional parking on the driveway as well as on street parking.
- School catchment:
> Patricks Road State Primary School
> Ferny Grove State High School
- Amenities nearby:
> Public Transport (Bus stop) Gordon Rd 108m
> George Willmore Park 386m
> Public Transport (Train station) 560m
> Pure Tennis Centre Ferny Hills 597m
> Arana Hills Library 1.07km
> Arana Hills Plaza 1.98km
> Keperra Country Golf Club 1.98km
> Tafe Queensland Grovely Campus 2.4km
How to book & inspect this property:
Arranging an inspection is easy. If you are on our website, simply click 'Book An Inspection', enter your details and confirm your booking by selecting your preferred date and time.
Alternatively, on realestate.com.au select 'Request an Inspection' and select your preferred date and time, along with your details.
Once confirmed, you'll automatically receive a confirmation email & SMS along with any updates that may occur for that property & inspection time.
If no one registers for an inspection time - then that inspection may not proceed. So, DON'T MISS OUT - Book for an inspection time today!